Чертежи размеры садовых качелей своими руками
Садовые качели из дерева своими руками: фото и ...
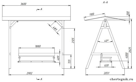
Качели из бруса 100х100 мм - чертеж с размерами...
Качели садовые размеры и чертежи в деталях
Характеристики Качели садовые подвесные Simple ...
Качели садовые размеры и чертежи
Качели садовые Дефа Люси Люкс купить в Минске
Характеристики Качели садовые с навесом "Адлер"...
Садовые качели из дерева своими руками - чертеж...
Садовые качели – Чертежи и размеры из металла и...
Качели садовые GreenGard София 2 3-х местные до...
Садовые качели | Для тех, кто любит работать с ...
Качели садовые раскладные. Комплект на заказ в ...
Качели садовые Мечта - Купить с доставкой по РБ!
Качели садовые (новый в упаковке) | Festima.Ru ...
Размеры качели для дачи своими руками: Садовые ...
Садовые качели техас размеры и чертежи - 95 фото
Качели садовые Аляска - Купить с доставкой по РБ!
Садовые качели из дерева своими руками: фото, ч...
Качели садовые Удачная мебель Бристоль A51А.003...
Качели садовые Пагода с1000 - Купить с доставко...
Качели садовые уДачная Мебель Варадеро Премиум ...
Качели садовые Монарх Вуд - Купить с доставкой ...
Качели садовые Турин-2 с1500 - Купить с доставк...
Качели садовые Redford 59302 Караван люкс 3-х м...
Качели садовые в интернет-магазине Ярмарка Маст...
Качели садовые Царская Ложа - Купить с доставко...
Размеры Садовых Качелей Из Металла Фото — Фото ...
Качели
Качели садовые с размерами из металла чертежи фото
Качели садовые
Качели садовые Элит Стандарт - Купить с доставк...
Качели размеры: Чертежи с размерами садовых кач...