Толкатель тэ 80: Толкатель гидравлический ТЭ-80...
ТП-80 Тахогенератор, ТП-75 Тахогенератор Техсер...
Т. 5 № 70, 71, 75, 80 | PDF
75 години довършваме жп линията през Троян | Тр...
Total 75w 90 »–› ÁrGép
Дт 75 кт 80: Проводка дебет 75 кредит 80 (нюансы)
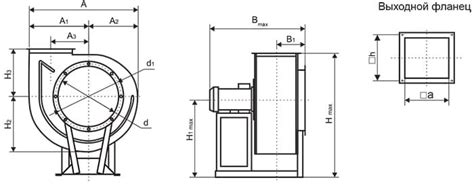
Купить вентилятор ВР 80-75 №2,5 0,37 кВт 3000 о...
Вентиляторы радиальные низкого давления ВР 80-7...
Раздел к 75-летию «Тяжмаша»
Вентилятор ВР 80-75-4 цена от 25900 руб. купить...
75
Масло трансмиссионное TOTAL 75W-80 1л - купить ...
Solved 75 75 75 80 80 80 85 00 0 0 0 0 2 0 0 55...
Одещина отримала від США 75 апаратів штучної ве...
Допомога США Україні - 75-80% грошей залишаютьс...
СТЕБЛО/ЩОК Ц-75 С КРЪГЛА ГЛАВА
Термоконтейнер ТКМ-75 (V=80л) H
Програма - 75-и конгрес на Световната асоциация по
Т.Цэрэнтогтох: 70, 80 хаврыг элээх биедээ өвчин...
Купить этикетка 75х75 термо топ (1000 эт. в рол...
75.80 Bilder – Durchsuchen 2,289 Archivfotos, V...
Характеристики масла total 75w80 h 6965 — купит...
Купить вентилятор радиальный ВР 80-75 №5 0,75 к...
Немски микрометър 75-100 в Други инструменти в ...
Total 75W80 – купить трансмиссионные масла на O...
Близо 75% от тютюна е изкупен | Новини
Токов трансформатор стандартен тип 75/5А
Балчик в 5 снимки от 70-те и 80-те ~ Бгспомен
ПВЦ Разклонител сив Ф75 на 87.5°